Das Schloss

Das Gebäude wurde ab 1908 nach Plänen des Architekten Paul Schultze-Naumburg (Nähere Informationen zu dem Architekten (siehe hier) für den Gutsbesitzer Hans A. Schaeper erbaut. Das im Stil des Neobarock errichtete dreiflügelige Gebäude ist mit klassizistischen Schmuckelementen verziert. (Frontansicht 1910 Jahrhundert).

Da das Haupthaus auf Eichenpfählen erbaut wurde, bekommt unser Gewölbe einen besonderen Flair. Für private Feiern kann das Gewölbe angebietet werden. Nähere Informationen erhalten Sie hier.

Auf der rechten Seite befindet sich ein Grundriss mit der geplanten Einteilung der Zimmer.


Bürogebäude

Ein "Wirtschaftstrakt", der die Schlossanlage nord-westlich zur Schlossstraße hin begrenzt, beherbergt heute das Verwaltungshaus.

Besonders ist zu erwähnen, dass das gesamte Verwaltungshaus aus Sandsteinen errichtet wurde. Derzeit befindet sich im Erdgeschoss die Mitarbeiterräume. Im ersten Obergeschoss befindet sich die Verwaltung sowie die Besprechungsräume.


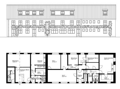
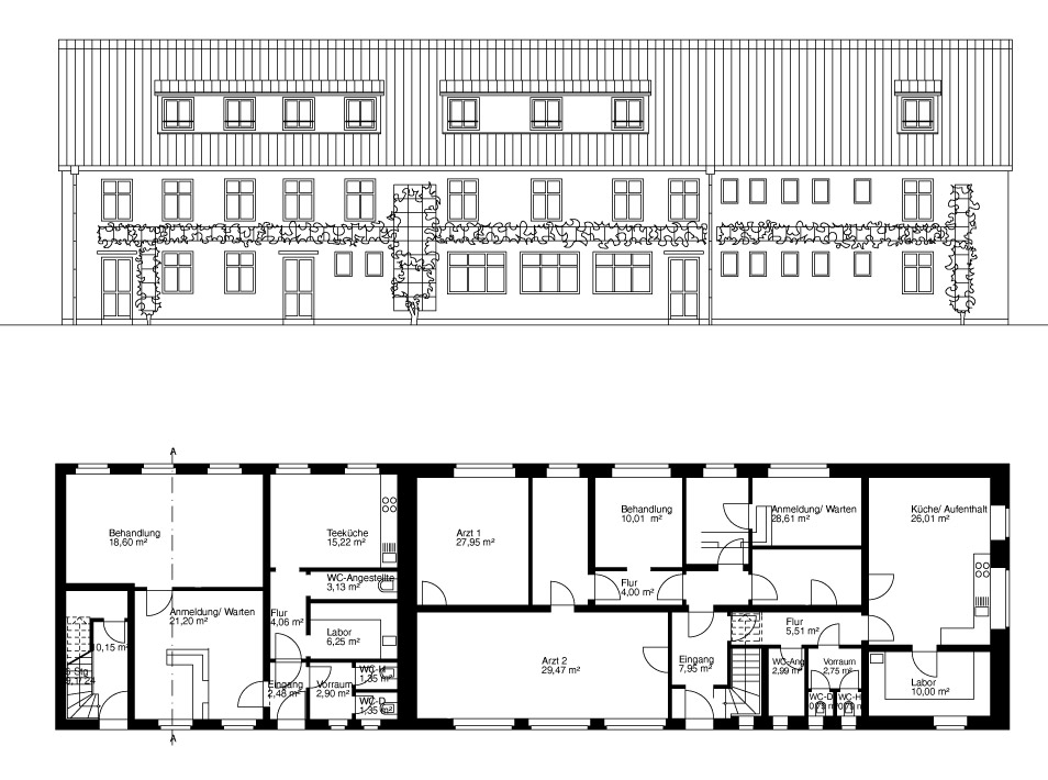
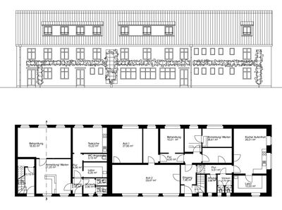
Mühlenhaus

Bauplan Mühlenhaus

Das Mühlenhaus befindet sich direkt neben dem Verwaltungshaus. Zu Krankenhauszeiten wurde das Mühlenhaus im südlichen Bereich erweitert, da es von seiner sehr zentralen Lage ideal erreicht werden kann.

auf der rechten Seite kann man die geplante Weiternutzung erkennen.

 


Heizhaus

Heizhaus

Das Heizhaus befindet sich direkt neben dem Mühlenhaus und ist das Herzstück der Anlage. Aufgrund der geplanten Nutzung wurde das Heizhaus neu gebaut und wurde so geplant, dass sowohl die gesamte Heizanlage, Gas- und Wasseranschlüsse sowie auch die Elektronikversorgung von dort aus gesteuert werden kann.