Das Carolinenhaus

aktueller Stand
Aktueller Stand

Das Carolinenhaus befindet sich im südlichen Schloßpark. Es gibt eine seperate Zufahrt, die über die Altenweddingerstraße genutzt werden kann.

Der Blick vom Carolinenhaus ist einmalig.

 

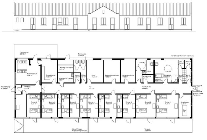
geplanter Umbau
aktueller Stand
Aktueller Stand